Passar para o Conteúdo Principal
Facebook Instagram Twitter Youtube Linkedin RSS
Câmara Municipal de Arcos de Valdevez

Plano de Pormenor de Salvaguarda e Renovação Urbana de S.Paio (1.ª Alteração) em Discussão Pública

05 Fevereiro 2016

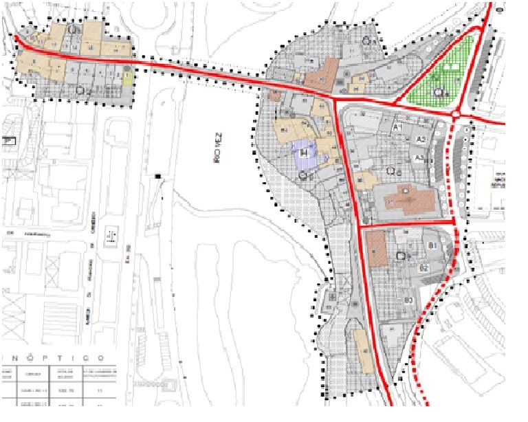
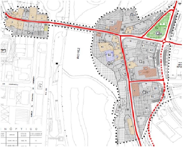
O Plano de Pormenor de Salvaguarda e Renovação Urbana de S.Paio - PPSRUSP, é um instrumento de planeamento que se encontra em vigor desde 1999. A sua elaboração e aprovação, teve como objetivo principal a reabilitação urbana, preservação e salvaguarda do património existente.

O Município realizou já um conjunto de obras municipais que passaram pela requalificação do espaço urbano, reabilitação de edifícios e equipamentos públicos municipais, tendo também ocorrido várias operações  de reabilitação,  promovidas por privados. Importa pois salientar a importância da intervenção privada na reabilitação urbana, que esperamos venha a intensificar-se, na sequência da definição de outros planos de ação, entretanto promovidos pelo Município, designadamente a Área de Reabilitação Urbana do Centro Urbano do Concelho de Arcos de Valdevez. 

Volvidos mais de 10 anos, desde a entrada em vigor do Plano de Pormenor, entendeu o  Município de Arcos de Valdevez oportuno, proceder à 1.ª alteração do Plano de Pormenor, no sentido de promover a sua adaptação às dinâmicas socioeconómicas entretanto ocorridas, bem como a sua adequação às solicitações de ocupação urbana, tendo como base a qualificação  das intervenções no espaço urbano e edificações,  a coesão e melhoria da imagem do conjunto urbano e a valorização dos espaços. 

Encontra-se a decorrer, até ao próximo dia 20 de fevereiro, a fase de discussão da 1.ª Alteração ao Plano de Pormenor.  A participação e o contributo dos cidadãos, é muito importante e constitui um direito que pode ser exercido através da formulação de sugestões e pedidos de esclarecimentos, na página eletrónica da autarquia (www.cmav.pt), no Serviço de Planeamento e Ordenamento do Território do Município de Arcos de Valdevez ou ainda por escrito, através de requerimento dirigido à Câmara Municipal, para a morada: Praça Municipal, 4974-003 Arcos de Valdevez ou por correio eletrónico para geral@cmav.pt.

No sentido de promover o debate e a participação dos cidadãos, o Município de Arcos de Valdevez realiza, no próximo dia 10 de fevereiro, pelas 21h00, uma Sessão Pública de Esclarecimento sobre a matéria, que terá lugar no Centro Municipal de Informação e Turismo e é destinada a todas as pessoas singulares e coletivas, incluindo associações representativas dos interesses ambientais, económicos, sociais e culturais, que estejam interessados em conhecer o projeto de alteração e   a apresentarem o seus contributos

Município de Arcos de Valdevez
Conteúdo atualizado em1 de junho de 2017às 16:05
Partilhar
Top